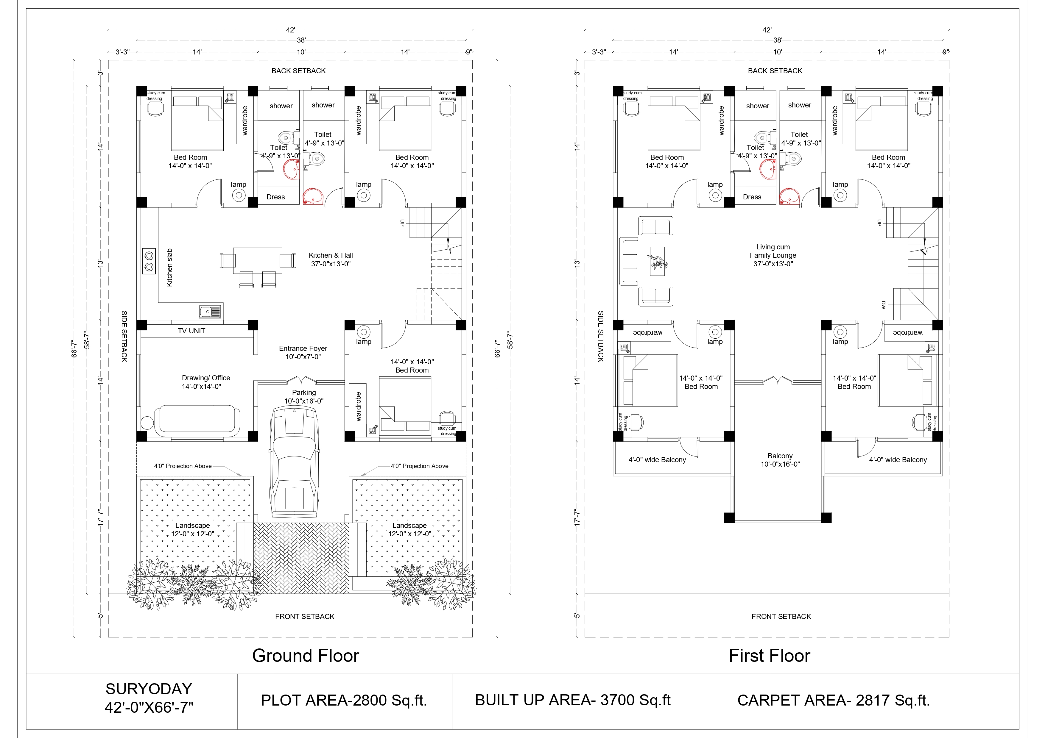
BUILTUP AREA SQFT
PLOT AREA SQFT
CARPET AREA SQFT
BEDROOMS
  • KITCHEN & HALL
  • LIVING CUM FAMILY LOUNGE
  • KID'S POOL
  • 2 FLOORS BUNGLOW

FLOOR PLANS.

About

Suryodaya Bungalow.

  • This Unit offers an ultra-luxurious experience with modern facilities designed to provide maximum comfort and convenience.
  • The eye-catching, elegant design of the unit is a conversation starter, making it a symbol of refined taste and prestige.
  • The unit features a land area of 2,800 sq. ft., a built-up area of 3,700 sq. ft., and a carpet area of 2,816 sq. ft., offering ample space for both relaxation and entertainment.
  • 24/7 security ensures the safety and peace of mind of all residents.
  • Continuous water supply and uninterrupted electricity provide a hassle-free and comfortable living experience.
Area Description
Builtup Area
3700 Sqft
Plot Area
2800 Sqft
Carpet Area
2817 Sqft
Bedrooms
7
Bathroom
4
Drawing / Office
1
Parking Place
1
Floors
G+1

contact person.

Manager

Vastu Vihar.

+977 - 98025-91815
info@vastuvihar.org